Skip to main content

Selbstnutzung/ Kapitalanlage – 3,5 Zi.-Wohnung in BMW Nähe

80809 München, Etagenwohnung zum Kauf

Objektdaten

  • Objekt ID
    EP-1769
  • Objekttypen
    Etagenwohnung, Wohnung
  • Adresse
    80809 München
    Bayern
  • Etage
    2
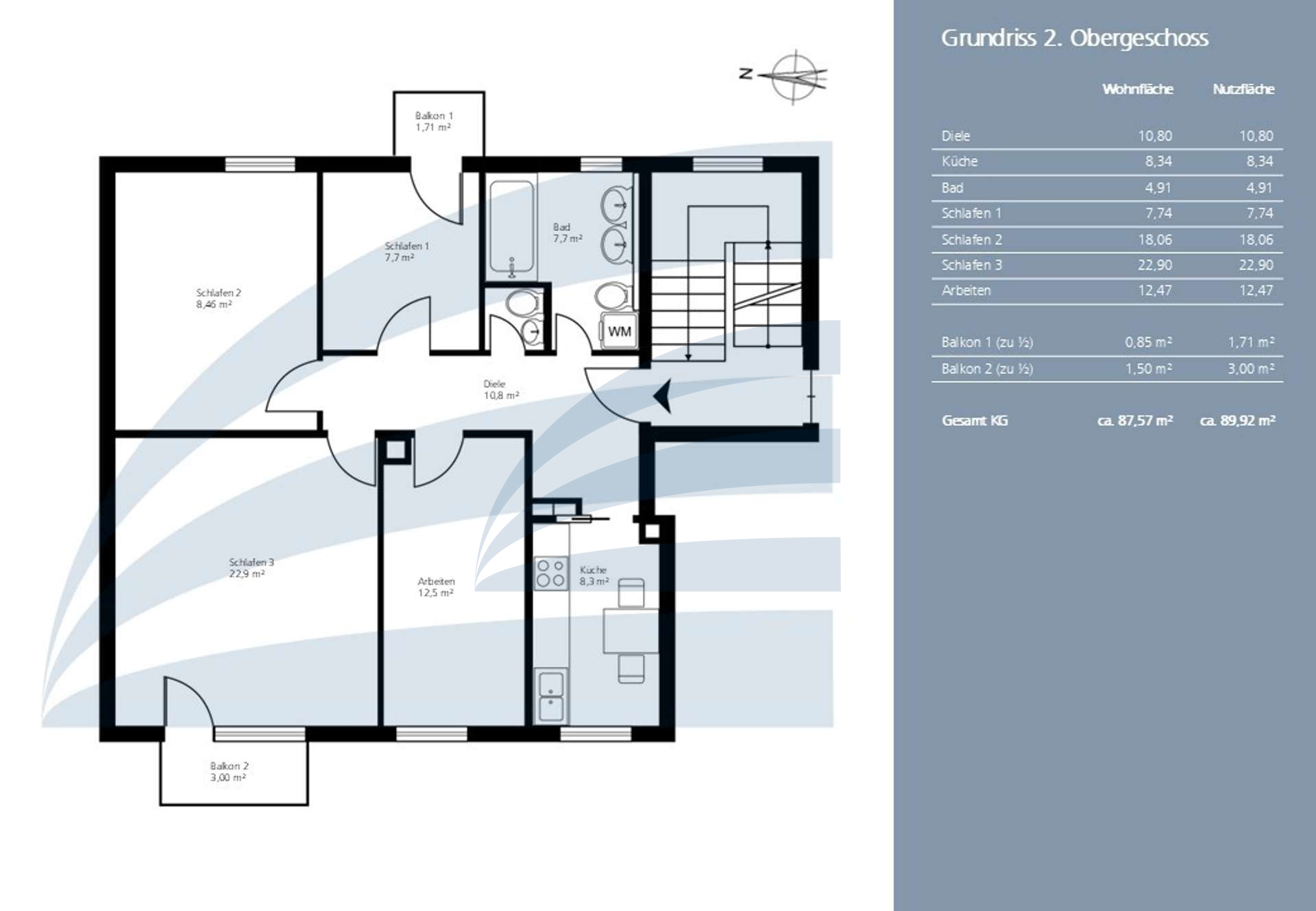
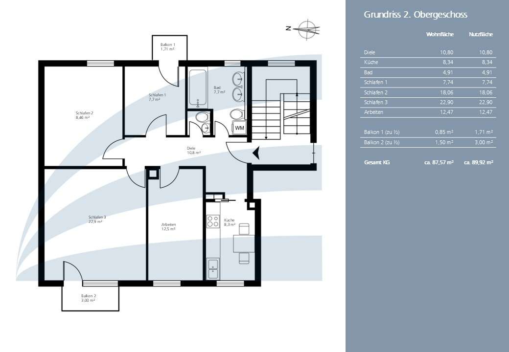
  • Wohnfläche ca.
    88 m²
  • Nutzfläche ca.
    2 m²
  • Zimmer
    3,5
  • Schlafzimmer
    4
  • Badezimmer
    1
  • Balkone
    1
  • Heizungsart
    Zentralheizung
  • Wesentlicher Energieträger
    Öl
  • Baujahr
    1963
  • Letzte Modernisierung
    2024
  • Zustand
    gepflegt
  • Ausstattung
    Standard
  • Status
    vermietet
  • Käufer­provision
    3,57% inkl. MwSt. vom Kaufpreis.
    Der Maklervertrag mit uns kommt durch die Bestätigung der Inanspruchnahme unserer Maklertätigkeit in Textform zustande. Die Höhe der Courtage richtet sich nach den ab dem 23.12.2020 in Kraft getretenen gesetzlichen Regelungen zur Teilung der Maklercourtage. Hiernach wird die Courtage regelmäßig für beide Parteien (Eigentümer und Käufer) 3,57 % auf den Kaufpreis einschließlich gesetzlicher Mehrwertsteuer betragen und ist bei notariellem Vertragsabschluss verdient und fällig. Vorstehende Provision ist in den Kaufvertrag aufzunehmen. Alle Angaben sind ohne Gewähr und basieren ausschließlich auf Informationen, die uns von unserem Auftraggeber zur Verfügung gestellt wurden. Wir übernehmen keine Gewähr für die Vollständigkeit, Richtigkeit und Aktualität dieser Angaben. Die Grunderwerbsteuer, Notar- und Grundbuchkosten sind vom Käufer zu tragen. Im Übrigen gelten unsere allgemeinen Geschäftsbedingungen. Irrtum und Zwischenverkauf vorbehalten.
  • Provisionspflichtig
    Ja
  • Hausgeld
    392 EUR
  • Kaufpreis
    635.000 EUR

Ausstattung / Merkmale

  • ✓ Badewanne
  • ✓ Balkon
  • ✓ Einbauküche
  • ✓ Fliesenboden
  • ✓ Gäste-WC
  • ✓ Keller
  • ✓ Parkettboden
  • ✓ Tageslichtbad

Energieausweis

  • Energieausweistyp
    Verbrauchs­ausweis
  • Ausstellungsdatum
    25.10.2017
  • Gültig bis
    24.10.2027
  • Gebäudeart
    Wohngebäude
  • Baujahr
    1963
  • Primärenergieträger
    Öl
  • Endenergie­verbrauch
    165,00 kWh/(m²·a)
  • Warmwasser enthalten
    ja
  • Energie­effizienz­klasse
    F

Objekt­beschreibung

Beschreibung

Bei dieser Immobilie handelt es sich um eine 3,5 (4)-Zimmer-Wohnung in Milbertshofen, welche aktuell als Kapitalanlage dient. Vermietet ist diese an eine WG.
Die Wohnung befindet sich in einem gepflegtem Zustand. Wichtige Elemente, wie z.B. Wasserabsperrhähne wurden erst kürzlich getauscht, womit die Wohnung gerade an die wichtigen Punkten stehts gewartet wurde.

Die Wohnung ist nach Osten und Westen ausgerichtet und verfügt auf beiden Seiten jeweils über einen Balkon. Der Grundriss ist als praktisch und effizient zu bezeichnen und darüber hinaus ist die Wohnung von außen schwer einsehbar.

Der Grundriss bietet bei einer Eigennutzung gewisse Flexibilität/ Gestaltungsfreiheit.

Das Haus wird vernünftig gewirtschaftet und es herrscht kein Streit innerhalb der WEG.

Bilder konnten innen leider nicht besonders viele gemacht werden, aber ein paar gibt es, um eine erste Vorstellung zu erhalten.

Sonstige Informationen

Alle Angaben sind ohne Gewähr und basieren ausschließlich auf Informationen, die uns von unserem Auftraggeber übermittelt wurden. Wir übernehmen keine Gewähr für die Vollständigkeit, Richtigkeit und Aktualität dieser Angaben. Sollte das von uns angebotene Objekt bereits bekannt sein, teilen Sie uns dieses bitte unverzüglich mit. Wir stehen Ihnen mit weiteren Informationen zum Objekt sowie für Besichtigungen gern zur Verfügung.

Lage

Die exklusiv von uns angebotene Wohnung liegt im zentralen Stadtteil Milbertshofen, welcher durch seine lebenswerte Umgebung überzeugt.
Milbertshofen ist durch die Nähe zum Zentrum und die sehr gute Verkehrsanbindung ein beliebtes Wohnviertel. Das neue "Schwabing-Nord", wie der Stadtteil Milbertshofen liebevoll genannt wird, ist einer der am schnellsten und schönsten wachsenden Stadtteile Münchens, so vielfältig wie seine Bewohner selbst. Zahlreiche Einkaufsangebote, Restaurants, Eisdielen und Cafés liegen nur wenige Meter fußläufig entfernt. Der Olympiapark mit Grünflächen, dem Olympiasee, einem Schwimmbad und Tennisplätzen sowie das weltbekannte Olympiastadion liegen gleich vor der Tür. Zudem bietet der nahe gelegene Luitpoldpark reichlich Grünfläche für Sport und Erholung sowie mit dem Bamberger Haus ein Restaurant und einen einladenden Biergarten. Durch dieses vielfältige Freizeitangebot und die Nähe zur BMW-Welt ist dieser Stadtteil eine sehr beliebte Wohnlage. Durch öffentliche Verkehrsmittel wie die U-Bahnstation Milbertshofen ist der Stadtkern schnell und bequem erreichbar. Mit dem PKW gelangt man nach wenigen Minuten auf den Mittleren Ring (Petuelring) und somit auch schnell auf die A9 in Richtung Norden. Der Flughafen München ist so schnell erreichbar.

Flughafen 27,78 min | Fernbahnhof 4,44 min | Bus 0,75 min 

Google Maps

Mit dem Laden der Karte akzeptieren Sie die Datenschutzerklärung von Google.
Mehr erfahren

Karte laden

Die dargestellte Position der Immobilie ist nur eine ungefähre Angabe.

Direktanfrage

* Pflichtangaben
 SSL-verschlüsselt
Immobiliendaten-Import und Darstellung für WordPress: WP-ImmoMakler®